武蔵村山市残堀第13期 新築戸建全4棟 売地全4区画 7号棟 東京都武蔵村山市残堀1|3,680万円の新築一戸建て|分譲住宅や新築物件|株式会社つむぐホーム

ご予約や事前のご相談など、お気軽にお問合せください

042-516-8883

TOPページ >
物件検索 >
新築一戸建て
>
武蔵村山市
>
JR中央本線
>
武蔵村山市残堀第13期 新築戸建全4棟 売地全4区画 7号棟
マチさんぽ

新築一戸建て

武蔵村山市残堀第13期 新築戸建全4棟 売地全4区画 7号棟
お気に入り
価格 3,680万円 ローンシミュレーション
所在地 東京都武蔵村山市残堀1
この地域周辺の物件を見る
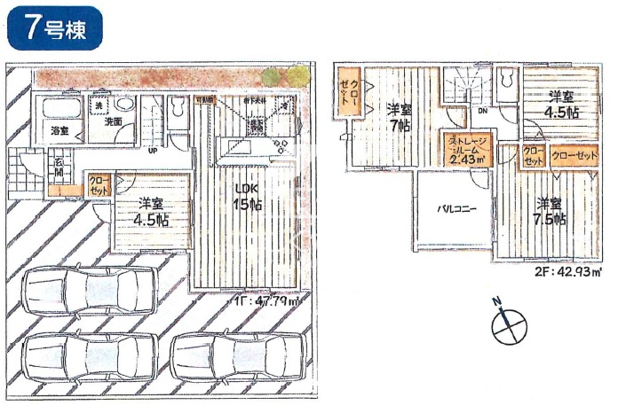
土地面積 120.02m² (36.31坪) 建物面積 90.72u
築年月 2026年3月築 間取り 4LDK (-)
交通
JR中央本線 立川 見晴橋 バス40分 停歩5分
ここがおすすめ

●JR中央線「立川」駅バス40分「見晴橋」停歩5分
●小学校まで徒歩5分の立地♪
●全居室2面採光の為陽当たり良好♪
●カースペース3台(車種による)

お問い合わせ、資料請求、見学のお申し込みはこちらから

電話をかける(携帯・PHS可)
042-516-8883
「ホームページを見た」とお伝え下さい。

お問い合わせ番号をお伝えください
RHS-k2658

内見予約
お問合せ

セールスポイント

特徴
  • 設計住宅性能評価書
  • 建設住宅性能評価書
  • フラット35・S対応住宅
  • 整形地
  • 日当たり良好
  • 南向き
  • LDK15帖以上
  • 全居室収納
  • 床下収納
  • ウォークインクローゼット
  • パントリー
  • システムキッチン
  • 対面キッチン
  • 浄水器
  • 浴室1坪以上
  • 浴室に窓
  • 浴室換気乾燥暖房機
  • 南面バルコニー
  • TVドアホン
  • カースペース3台
  • カースペース2台
  • カースペース2台以上
セールスコメント ●多用途に使えるストレージルーム♪
●パントリーやWIC等収納豊富♪
●個室にもリビングの続き間としても使える洋室♪
●広々とした南向きバルコニー♪

物件概要

採光面 構造/階数 木造/地上2階建
建ぺい率 40(%) 容積率 80(%)
駐車場 現況/引渡し 建築中/相談
土地権利 所有権 私道負担面積 なし

接道状況 接道: 西 公道 道路幅: 4.5m 用途地域
第一種低層住居専用地域
セットバック なし 法令上の制限 ●第一種高度地区 ●準防火地域
地目 宅地 地勢
建築確認番号 第25UDI1W建07570号 都市計画 市街化区域
取引態様 仲介
備考 -
情報更新日 2026年04月20日 次回更新日 2026年05月04日
※各種情報と差異がある場合は現況優先となります

学区情報

小学校区 武蔵村山市立第八小学校
(東京都武蔵村山市)
この学区の他の物件を見る
中学校区 第五中学校
(東京都武蔵村山市)
この学区の他の物件を見る
※物件情報の学区情報について
当サイト物件情報に記載されております通学区域(学区)情報は、国土数値情報ダウンロードサービスが提供する小学校区データ【2016年度】及び中学校区データ【2016年度】を元に加工したものですので、記載情報が現在の学区域と異なる場合がございます。
国土数値情報ダウンロードサービスのWEBサイト上で記述通り、データは必ずしも正確とは言えません。また、通学区域(学区)は毎年見直しの対象となりますので、そちらを踏まえ学区情報は参考としてご活用下さい。
お問い合わせ、資料請求、見学のお申し込みはこちらから

電話をかける(携帯・PHS可)
042-516-8883
「ホームページを見た」とお伝え下さい。

お問い合わせ番号をお伝えください
RHS-k2658

内見予約
お問合せ

この物件でローンシミュレーションする

価格 万円
年利率
ボーナス払い 返済年数
頭金 直接入力する 万円

毎月のご返済額

ボーナス(×年2回)

物件価格

3,680万円
※返済金額はあくまでも目安です。

こちらの物件は複数区画の分譲地・他にも販売中のマンションがあります。

武蔵村山市残堀1
2580万円〜3880万円
  • こちらの物件を見たお客様はこんな物件もチェックしています。
  • お気に入り物件

電話をかける(携帯・PHS可)
042-516-8883
「ホームページを見た」とお伝え下さい。

お問い合わせ番号をお伝えください
RHS-k2658

内見予約
お問合せ

お問い合わせ

お問い合わせ内容
お問合せ内容必須
【備考欄】
詳細な見学ご希望時間、ご質問、ご希望条件などがございましたらお聞かせ下さい。
(2000文字以内)
お客様情報
お名前必須
連絡先必須 メールアドレス

※ご記入いただいたメールアドレス宛てに、お問合せ内容の確認メールをお送りいたします。
※Yahoo!メールなどのフリーメールをご利用の場合、迷惑メールフォルダに入る場合があります。
 迷惑メールのフォルダ・設定等をご確認下さい。
電話番号
FAX(任意)

※ご入力いただいたお客さまの個人情報は、「個人情報の取扱いについて」に基づき適正に取り扱います。必ずお読みになり、同意の上お問い合わせください。

お気軽にお問い合わせください

042-516-8883
物件番号 RHS-k2658
※「ホームページを見た」
とお伝え下さい。

お知らせ

もっと見る

種別から探す

条件を指定して検索
  • はじめての住宅ローン。〜当社の強みを4つ紹介〜
  • 秘密厳守をお約束!売却相談 周囲に知られることなく売却できます

つむぐコンテンツ

店舗紹介

店舗写真

つむぐホーム東京都東大和市南街3-2-2
TEL : 042-516-8883
FAX : 042-516-8893
営業時間 : 10:00~19:00
定休日 :第1,3火曜日・水曜日

東大和市の不動産購入のことなら、つむぐホーム。不動産売却や住宅ローンの実績も多数ございます。ご相談は無料ですのでお気軽にお問合せください。

マメさ・親切さ・正直さでお客様をお迎え。
東大和市周辺の不動産のことならつむぐホームになんでもご相談ください。お待ちしております。

ご予約や事前のご相談など、お気軽にお問合せください

042-516-8883

アクセスMAP
  • 所在地

    〒207-0014
    東京都東大和市南街3-2-2

  • 営業時間

    10:00〜

    19:00

  • 定休日

    第1,3火曜日・水曜日

※キッズコーナーございます!お子様連れのお客様もご安心してご来店いただけます。

不動産屋 つむぐホームのキッズスペース

東大和市の不動産購入・売却サポート
Copyright (C) TSUMUGU HOME All Rights Reserved.